北見の住まいのことならダイゼン不動産 > (土地(売買))地域から探す > 網走郡大空町 > 網走郡大空町女満別西5条3丁目1番21号 古家付売地
350万円のこちらの土地は、経済的かつ好条件です。接道幅が10m以上あると利便性が高いです。土地の購入をご検討されているなら、ニーズも高いこちらの売地はいかがでしょうか。住まい探しの不安を、当社で解消しませんか。不動産のプロである当社スタッフが、お客様の住まい探しに対する不安や疑問をひとつひとつ解決いたします。まずはお気軽にお問い合わせください。
イベント情報











(※元利均等方式 金利5.00%まで ※返済年数5~50年まで入力できます)
(※ボーナスは年2回で計算しています。1000万円まで入力できます)
(※物件購入時、その他諸費用が発生する場合がございます)
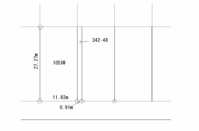
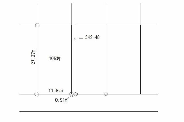
| 所在地 | 北海道網走郡大空町女満別西五条3丁目1番21号 | ||
|---|---|---|---|
| 交通 | |||
| 価格 | 350万円 | ||
| 土地の敷金/保証金 | -/- | 借地料/借地期間 | -/- |
| 土地面積(坪数) | 347.14㎡(105.00坪) | 坪単価 | 3.33万円 |
| 私道負担面積/セットバック | -/無 | 高圧線下面積 | - |
| 傾斜地部分面積 | - | 路地状敷地 | - |
| 土地権利 | 所有権 | 接道状況 | 一方(南 公道 間口 10.0m) |
| 都市計画 | 非線引区域 | 用途地域 | 第一種中高層住居専用 |
| 建築条件 | - | 地目/地勢 | 宅地/平坦 |
| 建ぺい率 | 60% | 容積率 | 200% |
| 総区画数 | - | 販売区画数 | - |
| 国土法届出要否 | 不要 | その他の法令上の制限 | 景観法 |
| 取引態様 | 仲介 | 現況 | 古家有 |
| 引渡時期 | 相談 | 引渡条件 | 現況渡 |
| 最適用途 | - | ||
| 物件番号 | 70115079 | 取引条件の有効期限 | 2026年02月23日 |
| 設備条件 |
|
||
| 備考 | 価格350万円と抑えめの価格にも関わらず、条件も整った土地です。接道幅10m以上となっております。土地購入をお考えの方、コチラの売地は環境も良くておすすめです。専門知識も必要になる不動産探しにお困りではありませんか。お客様のお悩みや疑問、住まいに求めるこだわりをぜひ当社スタッフにお聞かせください。親切丁寧にサポートいたします。 | ||
| 条件(その他) | 学校区:女満別小、女満別中 | ||
| 取扱会社 |
|
||
| QRコード |
このQRコードを読み取ることで、スマホでも物件情報を確認できます。 |
||
※地図上に表示される物件の位置は付近住所に所在することを表すものであり、実際の物件所在地とは異なる場合がございます。
網走郡大空町にある駅から探す
網走郡大空町女満別西5条3丁目1番21号 古家付売地周辺の駅から探す